«Металлоконструкции качественно и в срок»
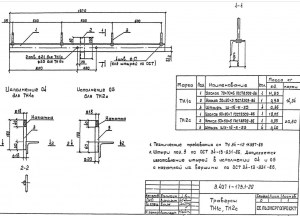
Траверсы ТН Низковольтные производства компании «MetallEnergo» это устройства, состоящие из металлических частей: штырьков и угла (налаженный процесс сварки штырей важная характеристика для конечного продукта, которой наша компания уделяет пристальное внимание).
Закрепление траверса происходит при помощи штыревых изоляторов, а также хомута (необходимый хомут приобретается отдельно).
ТН применяют в воздушных ЛЭП для закрепления проводов.
Наши Траверса ТН изготовлены полностью из стал по госту СНиП 2.03.11-85 и покрыты антикоррозийным составом методами оцинковывания и окрашивания.
Большой выбор модификаций изделия, обеспечен разнообразными формами, емкостью нагрузки, величиной и техническими параметрами предоставляют возможность подобрать траверс для опоры любого сечения.
Все типы траверсов ТН, их цены, чертежи и вес указаны в нашем каталоге Доставка производится по всей России.
Для того, чтобы задать вопрос или оформить заказ свяжитесь с нашими менеджерами при помощи указанных телефонов или почты.
Цены, фото, чертеж, вес можно посмотреть ниже
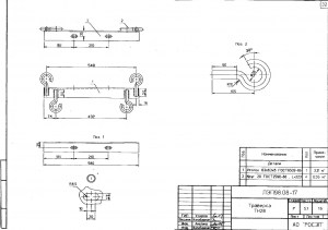
Траверсы ТН
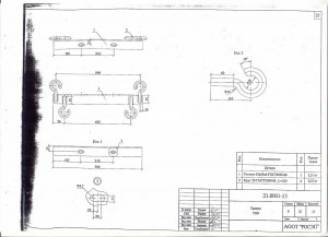
Траверса ТН-28 (21.0003)
Изделие для ЛЭП Траверса ТН-28 (21.0003) производится по ...
Траверса ТН-28 (22.0100)
Изделие для ЛЭП Траверса ТН-28 (22.0100) производится по ...
Траверса ТН-28 (ЛЭП 98.08)
Изделие для ЛЭП Траверса ТН-28 (ЛЭП 98.08) производится по ...
Траверса ТН-29 (21.0003)
Изделие для ЛЭП Траверса ТН-29 (21.0003) производится по ...
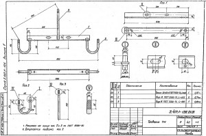
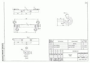
Траверса ТН-2с (3.407.1-173.1)
Изделие для ЛЭП Траверса ТН-2с (3.407.1-173.1) производится ...
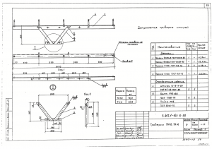
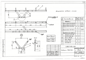
Траверса ТН-3 (3.407.1-136)
Изделие для ЛЭП Траверса ТН-3 (3.407.1-136) производится по ...
Траверса ТН-3с (3.407.1-173.1)
Изделие для ЛЭП Траверса ТН-3с (3.407.1-173.1) производится ...
Траверса ТН-4 (3.407.1-136)
Изделие для ЛЭП Траверса ТН-4 (3.407.1-136) производится по ...
Траверса ТН-4с (3.407.1-173.1)
Изделие для ЛЭП Траверса ТН-4с (3.407.1-173.1) производится ...
Траверса ТН-5 (3.407.1-136)
Изделие для ЛЭП Траверса ТН-5 (3.407.1-136) производится по ...
Траверса ТН-5с (3.407.1-173.1)
Изделие для ЛЭП Траверса ТН-5с (3.407.1-173.1) производится ...
Траверса ТН-6 (3.407.1-136)
Изделие для ЛЭП Траверса ТН-6 (3.407.1-136) производится по ...
Траверса ТН-6с (3.407.1-173.1)
Изделие для ЛЭП Траверса ТН-6с (3.407.1-173.1) производится ...
Траверса ТН-7 (3.407.1-136)
Изделие для ЛЭП Траверса ТН-7 (3.407.1-136) производится по ...
Траверса ТН-8 (3.407.1-136)
Изделие для ЛЭП Траверса ТН-8 (3.407.1-136) производится по ...
Траверса ТН-9 (3.407.1-136)
Изделие для ЛЭП Траверса ТН-9 (3.407.1-136) производится по ...
Траверса ТН-1 (3.407.1-136)
Изделие для ЛЭП Траверса ТН-1 (3.407.1-136) производится по ...
Траверса ТН-10 (3.407-136)
Изделие для ЛЭП Траверса ТН-10 (3.407-136) производится по ...
Траверса ТН-11 (3.407.1-143.8)
Изделие для ЛЭП Траверса ТН-11 (3.407.1-143.8) производится ...
Траверса ТН-12 (3.407.1-136)
Изделие для ЛЭП Траверса ТН-12 (3.407.1-136) производится ...
Траверса ТН-13 (3.407.1-136)
Изделие для ЛЭП Траверса ТН-13 (3.407.1-136) производится ...
Траверса ТН-14 (3.407.1-136)
Изделие для ЛЭП Траверса ТН-14 (3.407.1-136) производится ...
Траверса ТН-15 (3.407.1-136)
Изделие для ЛЭП Траверса ТН-15 (3.407.1-136) производится ...
Траверса ТН-152 (3.407-5-141)
Изделие для ЛЭП Траверса ТН-152 (3.407-5-141) производится ...
Траверса ТН-154 (3.407-5-141)
Изделие для ЛЭП Траверса ТН-154 (3.407-5-141) производится ...
В работе с клиентами нашу компанию отличает высокий профессионализм и скорость выполнения заказов.
Особое внимание мы уделяем поддержке клиента на всех этапах сотрудничества.
г. Санкт-Петербург, ул. Новоселов д.8, литера А, помещ. 8Н, офис 204info@zmcregion.ru













